"WILLMAREE" ~ UNDER CONTRACT

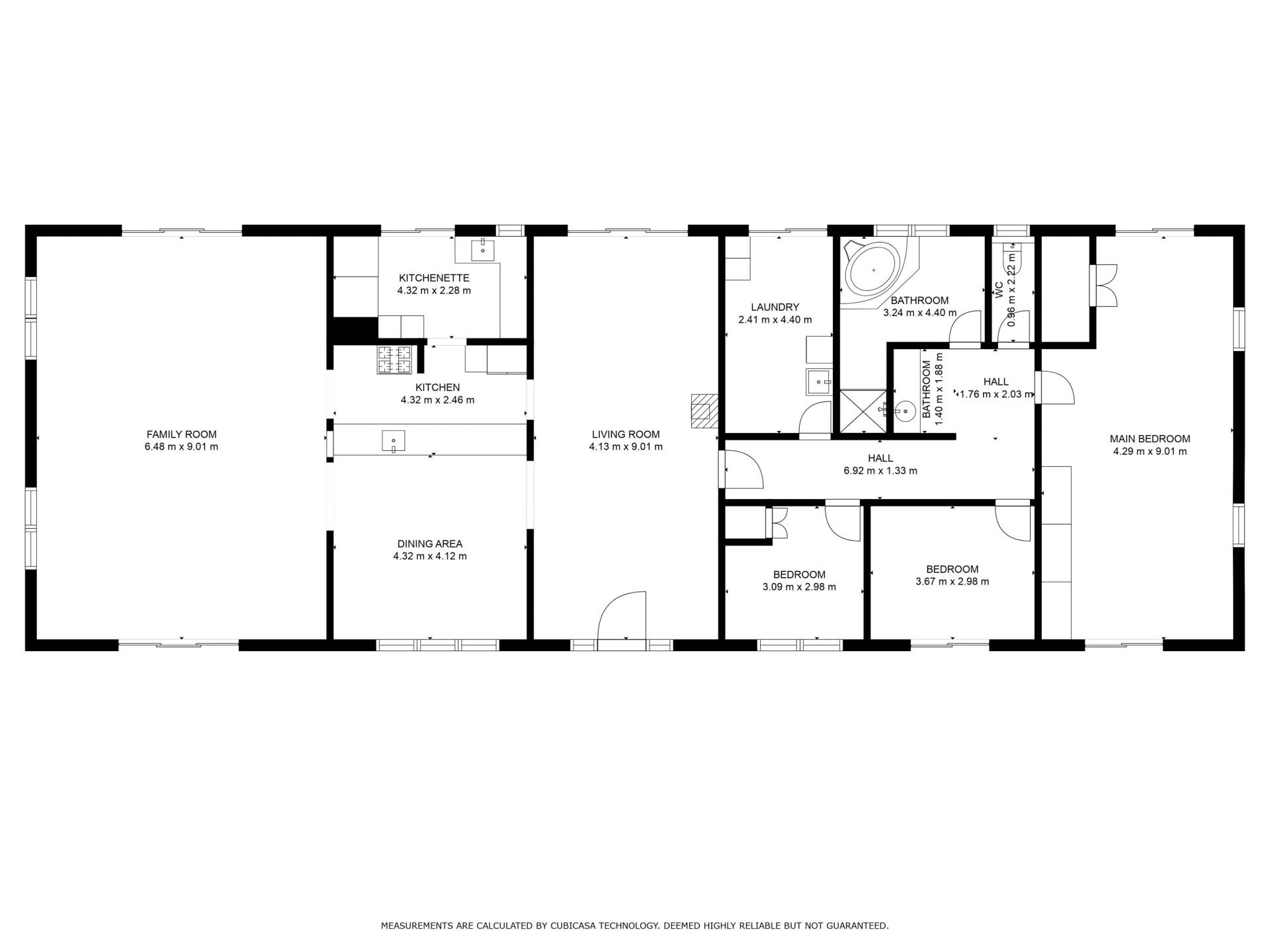
Nestled on 153 private native bush acres where nature is at its finest including a long frontage to a crystal clear permanent stream, yet located just 3 mins (drive) from Wyndham village (general store, school, pub etc) and 25 mins from the beach. Willmaree Homestead is a magnificent testament to endurance and clarity of vision - Expansive and North facing, the residence is brick construction all made on site and lovingly constructed over many years. Comprising a massive open main living space with soaring raked ceilings and front & rear verandah access (with spectacular Jingera Rock and National Park views), separate dining, quintessential country kitchen (inc fuel stove) and prep/larder area. Family room (s/c heating & slate floors), massive master bedroom with verandah access & ensuite (needs completing), BIRs (brs 2 & 3) and 3 way main bathroom. The homes immediate surrounds are park-like and mostly cleared, approx 10 acres in size with many established plantings and a fabulous 60ft x 30ft high clearance drive through industrial/farm shed with power  and small adjacent store/studio inc bathroom facilities. Complete with plenty of tank water plus pump on Myrtle Creek, veggie gardens, chook yards etc. Naturally yours.

3 2 2 153.00 ac
Address 2331 Mount Darragh Rd, Wyndham
Price SOLD for $950,000
Property Type Rural
Property ID 1721
Land Area 153.00 ac

Agent Details

Chris Wilson photo

Chris Wilson

0427 003 406
View Profile