Just Listed

YARRAN HOMESTEAD

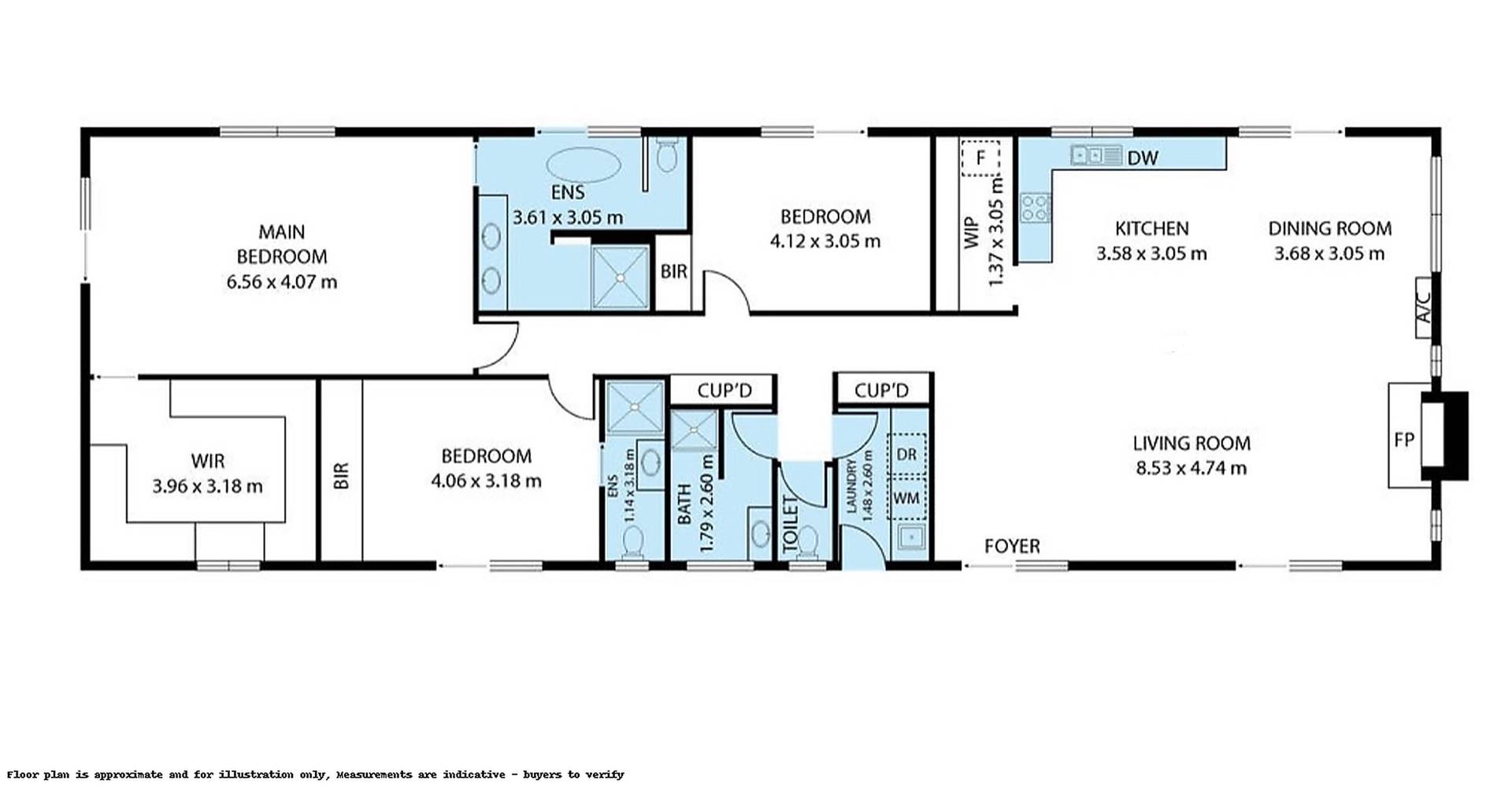
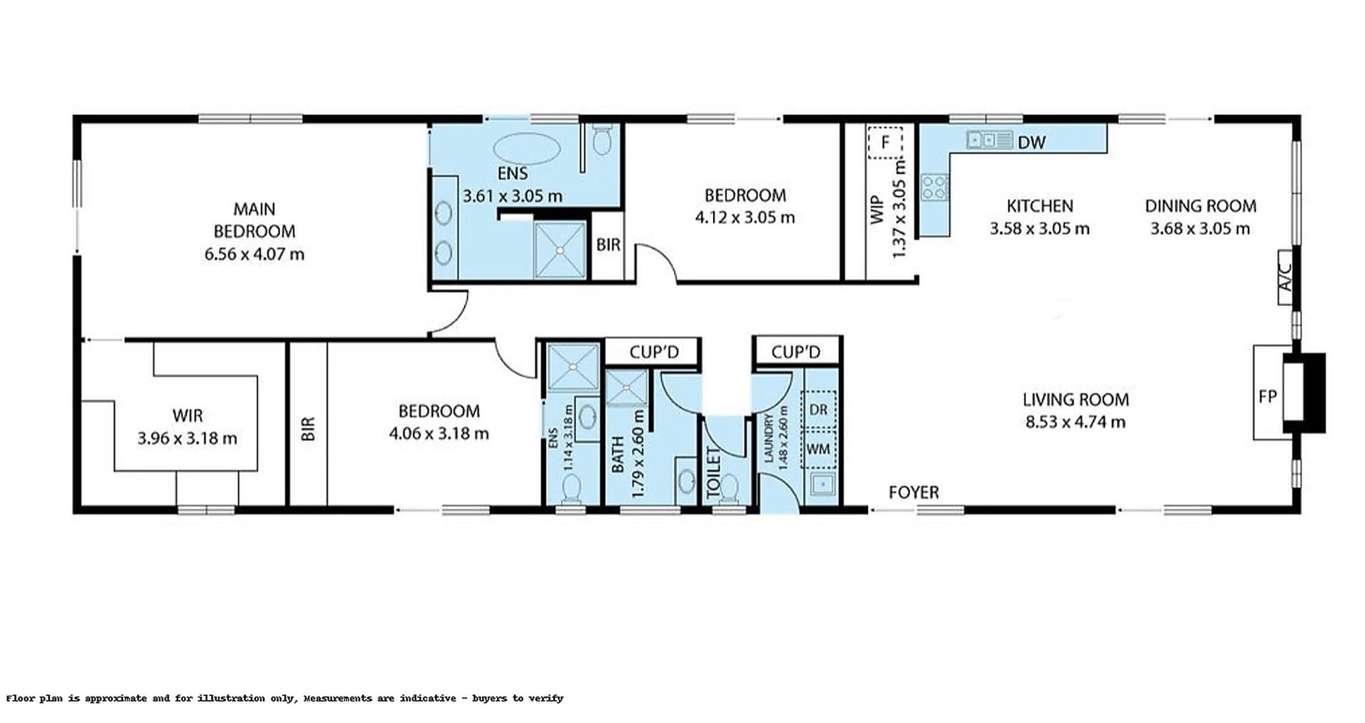
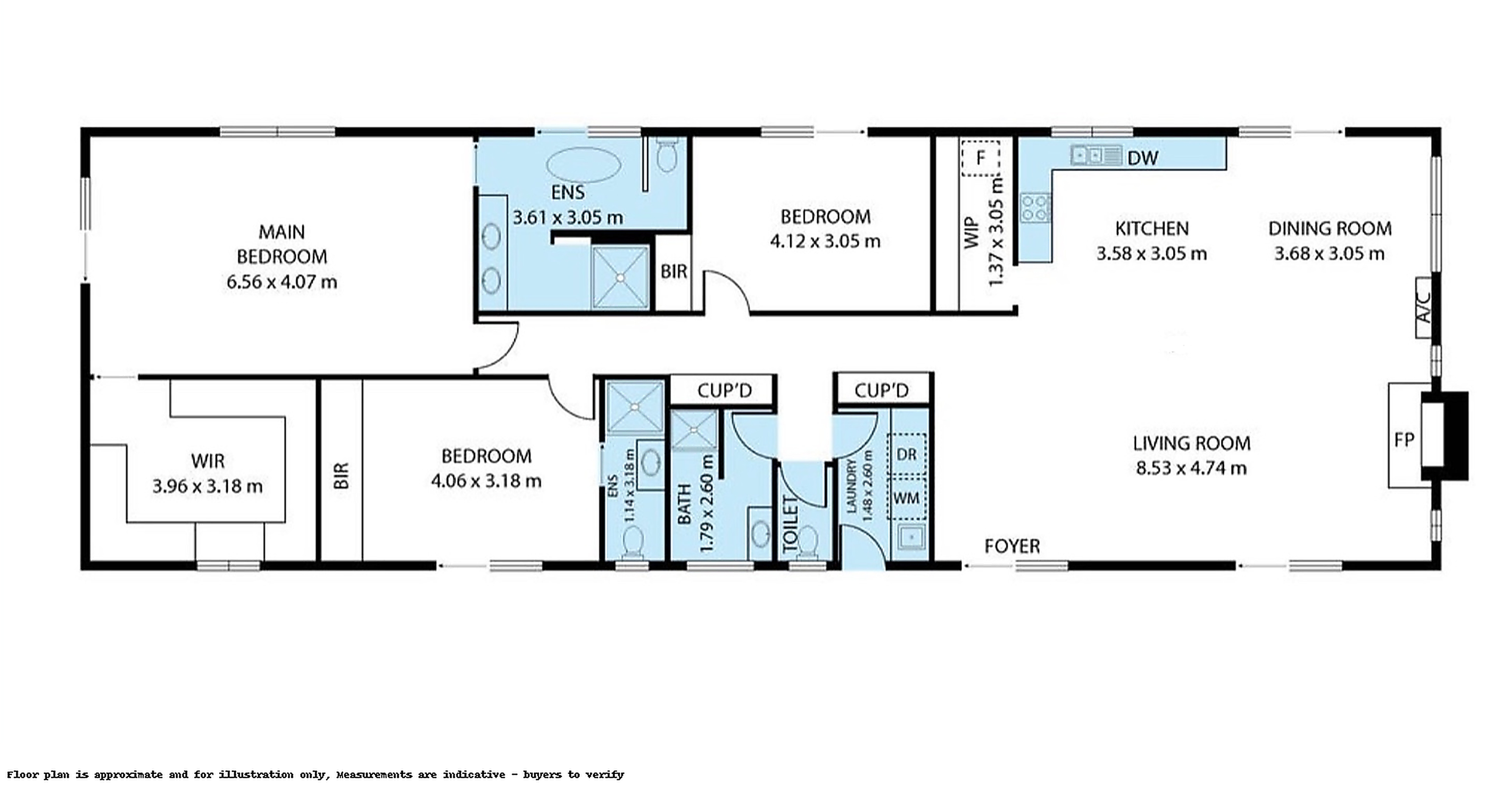
Incredibly just moments (2 min drive) from the iridescent blue waters & powder white sands of sublime Twofold Beach & Twofold Bay, along a meandering sealed driveway flanked by majestic eucalypts the magnificence of Yarran Homestead is slowly revealed. Extraordinarily private, the homestead is nestled  on 120 coastal acres superbly sited on a near level elevated knoll providing unrestricted 360° bay, ocean & hinterland views to inspire. Recently completely renovated, the bespoke 3BR residence boasts a sublime sundrenched Northerly aspect with verandahs all round and features gorgeous polished concrete floors throughout and is fully smart wired to cater for your every whim. Comprising sumptuous open living and dining areas resplendent with raked ceilings, stone fireplace/wood heater & split system, fully equipped kitchen with quality European appliances, custom hardwood walk-in pantry and oak island bench/table. The whole living zone effortlessly transitioning out to a paved and covered alfresco/BBQ area to relax and watch time go by whilst the automated mower glides past. Luxurious king size master suite (water views of course) including decadent fully tiled ensuite, custom joinery, stone bath and twin vanities, twin showers, WC, heated floor plus a dream fully integrated soft close walk-in robe. Both BR’s 2 & 3 are generous in size with plenty of robe space whilst BR 2 features chic ensuite (heated floor). Sleek fully tiled main bathroom (shower, vanity & sep WC) & laundry with built-in joinery. Other improvements include carport, adjacent workshop, mains power + 13kw BTG solar system and town water. With one eye to the future the property is zoned for subdivision (STCA). Simply a coastal triumph.

 

3 3 2 120.00 ac
Address 72 Yarran Road, BOYDTOWN Via, Eden
Price $1,800,000
Property Type Residential
Property ID 2121
Category Acreage Semi-rural
Land Area 120.00 ac

Agent Details

Chris Wilson photo

Chris Wilson

0427 003 406
View Profile