DESIGNED FOR LIFE

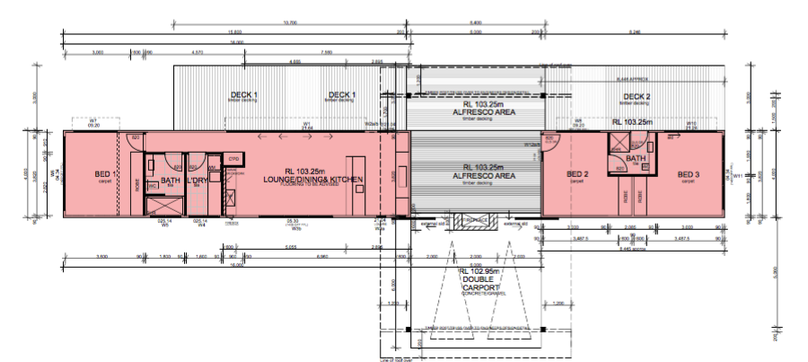
Stunning contemporary designer home tucked away in ever popular Bald Hills on 4.6 private native bush acres offering impressive views & a glorious sun drenched aspect. Extensive iron bark decking ensures the flow from indoor to out of the bespoke 3 BR residence which features 3.8m ceilings, 5 star insulation, double glazing, hoop pine joinery & silvertop ash cladding. Light filled open living featuring a sheik soft close custom kitchen with a full array of appliances, breakfast bar & servery to enormous outdoor covered entertainment/living (complete with wood heater), 2 quality bathrooms, BRs all with deck access + BIRs (2 BRs ensuited). Brilliantly located just 5 min from Pambula Village (8 mins to beach) easy access, extensive driveway & parking incl. huge double carport, detached colorbond double garage/workshop plus cabled carport, good stand of parklike native bush to wander through & clear spring fed dam. Designer living meets lifestyle of choice.

3 2 4 4.60 ac
Address 60 Mac Hill Pl, Bald Hills
Price SOLD for $620,000
Property Type Residential
Property ID 1126
Category Acreage Semi-rural
Land Area 4.60 ac

Agent Details

Chris Wilson photo

Chris Wilson

0427 003 406
View Profile